Budynek GL-121







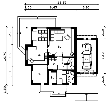
Rzut parteru




Rzut poddasza




Przekrój